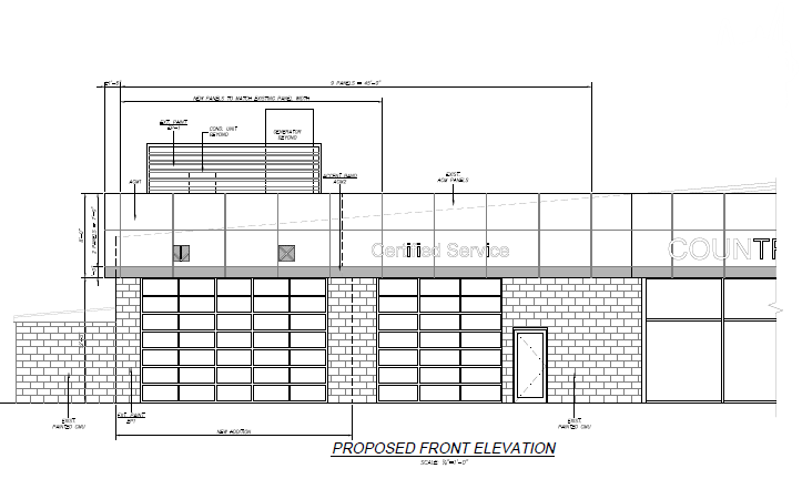
Project Title: Country Chevrolet Express Lube Addition

Project Location: Warrenton, VA

Project type: complete

cc
cc2
cc3
cc cc2 cc3

We partnered with Country Chevrolet in Warrenton, VA. We expanded their office and service building and created more bays for express oil changes. This means an even better experience for their valued customers. We also provided mechanical upgrades to their existing building.

About Us Our Portfolio

Our team is always available to discuss your plans and ideas. Reach out to us today by going to our contact page or calling us at 540-428-3612.