Project Title: Crown Jewel Storage Building

Project Location: Manassas, VA

Project type: current

crown jewel
crown jewel

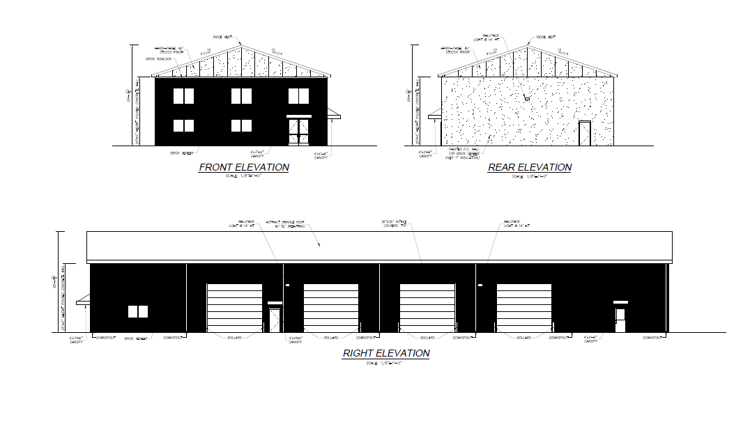
This 8,400 SF storage facility in Manassas, Virginia features concrete-formed walls and wood truss construction. The building includes brick veneer on two exterior elevations, along with windows, personnel doors, canopies, and multiple overhead doors. The structure was designed for durability and functionality to support the client’s storage needs.

About Us Our Portfolio

Our team is always available to discuss your plans and ideas. Reach out to us today by going to our contact page or calling us at 540-428-3612.