Project Title: Dominion Energy Facility Expansion
Project Location: Orange, VA
Project type: current
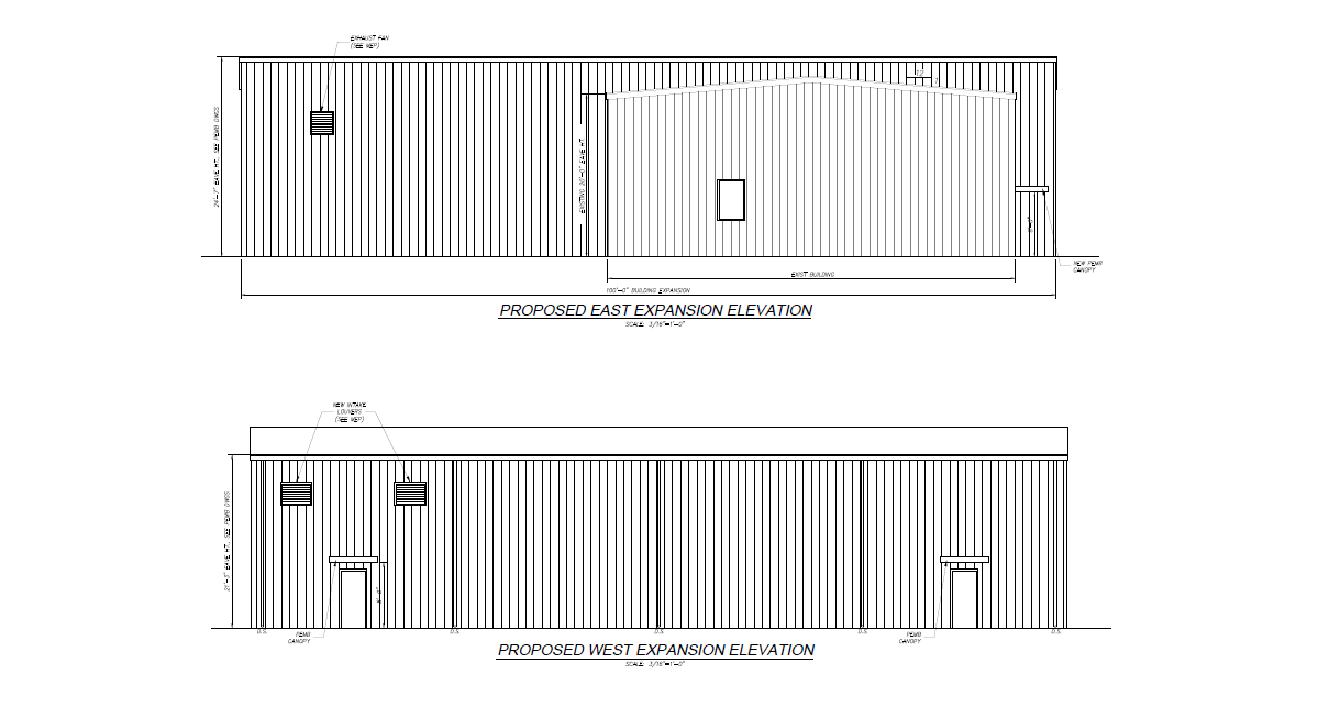
This project for Dominion Energy includes two new structures at an existing operations facility: a 4,000 SF pre-engineered Nucor metal building addition for truck storage and a 1,900 SF truck maintenance building. DCG originally constructed the existing building and has since completed a previous addition—this marks the second expansion at the site.
The 4,000 SF addition requires structural modifications to the existing building’s endwall to accommodate a higher roofline and ensure structural integrity. The scope includes installation of overhead doors, personnel doors, canopies, insulation, a plywood liner panel, and concrete work. The new truck maintenance building includes similar features, with overhead doors, doors, canopies, and concrete as part of the scope.
Our team is always available to discuss your plans and ideas. Reach out to us today by going to our contact page or calling us at 540-428-3612.






